


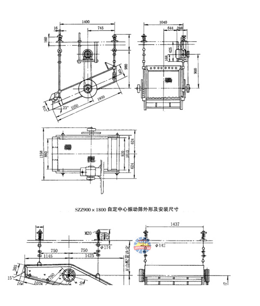
自定中心振動篩結構主要由篩箱、激振器、懸掛(或支承)裝置及電動機等組成。電動機經三角皮帶,帶動激振器主軸旋轉,由于激振器上的不平衡產生了離心慣性力的作用,使篩箱獲得振動。改變激振器偏心重,可以獲得不同振幅。


自定中心振動篩結構主要由篩箱、激振器、懸掛(或支承)裝置及電動機等組成。電動機經三角皮帶,帶動激振器主軸旋轉,由于激振器上的不平衡產生了離心慣性力的作用,使篩箱獲得振動。改變激振器偏心重,可以獲得不同振幅。
1)篩上物料在振動作用下能達到很好的松散和分層;
2)該振動篩的配重質量大小可以調節,可根據生產要求調節篩子振幅大小;
3)當給礦量發生變化時,振幅也變化。當給礦量少時振幅加大振動加劇;給礦量多時振幅變小。給礦量的變化將影響“動力平衡”,從而使皮帶輪中心產生一些振動;
4)適用于中、細粒篩分而不適應粗物料篩分。
| 自定中心振動篩技術性能 | |||||||
| 型號 | 規格 | 最大給料粒度(mm) | 處理能力 (t/h) | 電機 | 重量 | 備 注 | |
| 型號 | 電機功率 (kw) | (kg) | |||||
| SZZ0918 | 900×1800 | 40 | 20~25 | Y100L1-4 | 2.2 | 420 | 吊式 |
| SZZ0918 | 553 | 座式 | |||||
| 2SZZ0918 | 570 | 座式 | |||||
| SZZ1225 | 1250×2500 | 100 | 100 | Y132S-4 | 5.5 | 1020 | 吊式 |
| SZZ1225 | 1330 | 座式 | |||||
| 2SZZ1225 | 1320 | 吊式 | |||||
| 2SZZ1225 | 1335 | 座式 | |||||
| SZZ1530 | 1500×3000 | 200 | Y132M-4 | 7.5 | 1650 | 吊式 | |
| SZZ1530 | 1700 | 座式 | |||||
| 2SZZ1530 | 2870 | 吊式 | |||||
| SZZ1540 | 1500×4000 | 100 | 90-200 | Y160L-4 | 15 | 3412 | 座式 |
| 2SZZ1540 | 1500×4000 | 100 | 250 | Y160L-4 | 15 | 4240 | 座式 |
| SZZ1836 | 1800×3600 | 150 | 300 | Y180M-4 | 18.5 | 4500 | 吊式 |
| 2SZZ1836 | 5616 | 座式 | |||||
如果您正在尋找相關產品,或者有其他問題,可隨時撥打金鵬礦業機械服務熱線,或點擊下方按鈕與我們在線交流!
您好!請在下方填寫您聯系方式和詳細需求,以便能為您提供更加詳細的講解。
我們會盡快安排工作人員與您聯系!
您的稱呼:
聯系電話:
您的郵箱:
留言內容:
* 產品:
* 礦石:
* 處理量: (t/d 或 t/h)
* 姓名:
* 郵箱:
* 電話:
* 留言內容: